Préférences Préférences Sauvegarder0
Contactez-nous
Envoyer un mail

Préférences

Devises

Ma recherche
  1. Accueil
  2. >
  3. Acheter
  4. >
  5. Vente Duplex Lyon 5 5 Pièces 138 m²
7 Photos
Vente Duplex Lyon 5 5 Pièces 138 m²
duplex 5 Pièces en vente sur LYON (69005)
duplex 5 Pièces en vente sur LYON (69005)
duplex 5 Pièces en vente sur LYON (69005)
duplex 5 Pièces en vente sur LYON (69005)
duplex 5 Pièces en vente sur LYON (69005)
duplex 5 Pièces en vente sur LYON (69005)
duplex 5 Pièces en vente sur LYON (69005)
Galerie

Vente Duplex Lyon 5 5 Pièces 138 m²

927 480 €
  • 5 Pièces
  • 4 Chambres
  • 138 Surface
  • 4 Chambres
  • 138 Surface
Réf. AK2-5154

Opportunité Rare – ATTIQUE D’EXCEPTION EN DUPLEX

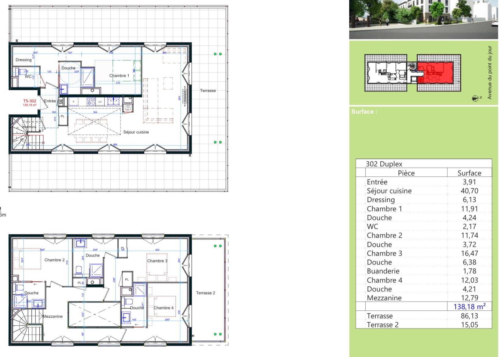
Au cœur du 5ème arrondissement de Lyon, découvrez ce somptueux appartement en attique de 138 m² en duplex, offrant des prestations haut de gamme et des matériaux de qualités.

Profitez au premier niveau d’une cuisine ouverte sur le séjour lumineux et spacieux ouvrant sur 87 m² de terrasse. Au second niveau vous retrouverez 4 suites, chacune avec sa propre salle d’eau ainsi q’une seconde terrasse de 15 m².

Profitez d’un emplacement privilégié, proche des commodités et des transports.
Un bien unique et rare sur le marché pour une qualité de vie incomparable.

Programme neuf, livraison 2ᵉ trimestre 2027, le chantier a débuté !
N’hésitez pas et contactez moi.

Lire la suite
Edson MEJEAN
Être Rappelé Demande de rendez-vous
Vente Duplex Lyon 5 5 Pièces 138 m²
Vente Duplex Lyon 5 5 Pièces 138 m²
Galerie photos

En savoir plus...

  • Description générale
  • Type de bien : duplex
  • Surface : 138 m²
  • Terrasse : 101.18 m²
  • Pièces : 5
  • Chambres : 4
  • Salle(s) d'eau : 4
  • Environnement
  • Ville : Lyon (69005)
  • Vue : sans vis-à-vis
  • A proximité : Centre commercial, Centre ville, , École
  • Transport : Autoroute, Bus, Gare, Métro, Tramway
  • Description complémentaire
  • Année de construction : 2025
  • Chauffage : individuel, sol, gaz
  • Ascenseur : Oui
  • terrasses : 2

Diagnostics énergétiques

Afficher les bilans énergétiques

Edson MEJEAN
  • Agence
  • Lyon
  • Sotheby's International Realty
  • 12, place Puvis de Chavannes
  • 69006 Lyon, France
  • +33 4 72 19 19 73

Les informations recueillies sur ce formulaire sont enregistrées dans un fichier informatisé par la société Lyon Sotheby's International Realty pour la gestion et le suivi de votre demande. Conformément à la loi "Informatique et liberté", vous pouvez exercer votre droit d'accès aux données vous concernant et les faire rectifier en contactant : Lyon Sotheby's International Realty, correspondant : "Informatique et libertés" 12, place Puvis de Chavannes 69006 Lyon ou à contact@lyon-sothebysrealty.com , en précisant dans l'objet du courrier "Droit des personnes" et en joignant la copie de votre justificatif d'identité.

¹ Nous vous informons de l’existence de la liste d'opposition au démarchage téléphonique "BLOCTEL" sur laquelle vous pouvez vous inscrire (bloctel.gouv.fr).

Ce site est protégé par reCAPTCHA, les règles de Confidentialité et les Conditions d'Utilisation de Google s'appliquent.

Performance énergétique et climatique

Diagnostics énergétiques

Diagnostic réalisé avant le 1er juillet 2021

Demande de rendez-vous Appeler Message